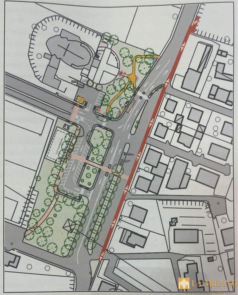
Verona, una nuova vita per piazzale Sforni

Da febbraio 2024, a #Verona, prenderanno infatti avvio i lavori di piazzale Sforni. Ampia riqualificazione che interesserà la piazza principale del quartiere, con l’unificazione delle aree verdi e la creazione di un grande parco per la comunità …CONTINUA A LEGGERE 

POTREBBE INTERESSARTI

Veneto

Operazione congiunta della Guardia di Finanza e della Polizia di Stato: il plauso del sindaco Possamai per il contrasto al traffico di droga

Il sindaco di Vicenza, Giacomo Possamai, ha espresso il suo sincero apprezzamento per il brillante risultato ottenuto dalla Guardia di Finanza di Vicenza e dalla Polizia di Stato di Rovigo, che hanno portato a termine un’operazione complessa e articolata contro un giro di spaccio di sostanze stupefacenti di portata regionale. L’operazione, svolta in sinergia tra […]

Leggi altro...
Veneto

Focolaio di hantavirus: sorveglianza attiva in Italia e Spagna per i passeggeri del volo KLM

Il Ministero della Salute italiano ha attivato la sorveglianza sanitaria su quattro passeggeri che erano a bordo di un volo KLM diretto a Roma, nel quale è salita una donna proveniente dalla nave da crociera MV Hondius, successivamente ricoverata in Sudafrica e deceduta a causa dell’Hantavirus. L’attenzione si concentra su questi passeggeri, in particolare per […]

Leggi altro...
Veneto

Incidente a Chioggia: tre morti in un canale, indagini in corso sul trasporto illegale di lavoratori

Questa mattina, alle prime luci dell’alba, una tragedia ha scosso la zona di Ca’ Lino, lungo l’Idrovia Sant’Anna di Chioggia, in provincia di Venezia. Un furgoncino, che trasportava nove lavoratori stranieri, è finito nel canale e si è ribaltato. Il bilancio dell’incidente è drammatico: tre persone sono morte e altre sei sono riuscite a uscire […]

Leggi altro...